6 – Prescrizioni riportate nel punto 7.8.1.4 del D.M. 14/01/2008 (Criteri di progetto e requisiti geometrici)
In questo paragrafo vengono determinate i maschi murari dell’edificio in grado di resistere all’azione sismica. Affinché gli elementi siano idonei a resistere all’azione sismica, devono rispettare le prescrizioni riportate nella tabella 7.8.II del suddetto D.M. Nel nostro caso, poiché la struttura è realizzata in muratura ordinaria con elementi artificiali, gli elementi devono rispettare i limiti sotto riportati.

Tabella 48 – Requisiti geometrici per le pareti resistenti al sisma
I limiti relativi allo spessore sono rispettati in quanto gli elementi utilizzati hanno spessore di 30 e 45 cm, maggiore del valore limite minimo previsto pari a 24 cm (vedi tabella 48). La snellezza degli elementi è stata calcolata nella sezione 5.5 e per tutti è rispettato il limite massimo pari a 12. Per soddisfare le verifiche richieste, rimane da verificare che il rapporto tra lunghezza degli elementi (
) ed altezza dei fori adiacenti (h’) sia maggiore di 0.4 (nei casi in cui l’elemento è affiancato da due fori, per la verifica si prende in considerazione quello di dimensioni maggiori). Si riportano di seguito i risultati della verifica per tutti gli elementi dell’edificio.
Gli elementi che rispettano le richieste della verifica sono idonei a resistere all’azione sismica e possono essere considerati nel computo degli elementi resistenti. Viceversa, quelli che non rispettano tale limite, non possono essere computati tra gli elementi resistenti (come abbiamo visto nella sezione 5.9, questi ultimi possono portare al massimo il 25% dei carichi verticali dell’intero edificio).
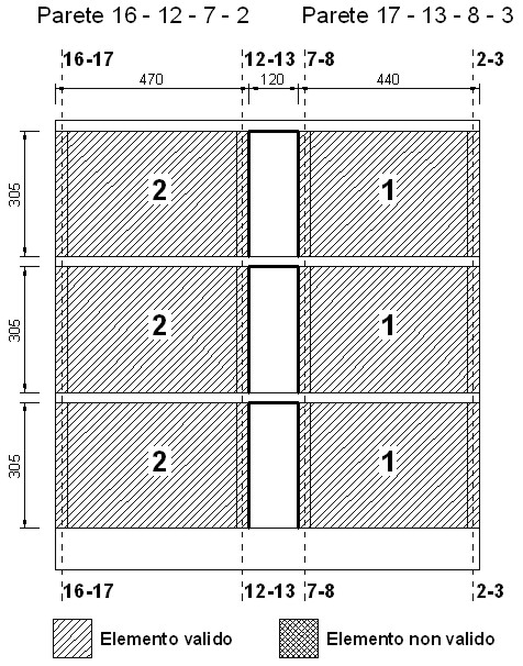
Per comodità di lettura, per ogni parete, oltre ai risultati numerici, si riporta graficamente anche la parete stessa.
Negli elaborati, gli elementi con singola campitura, sono idonei a resistere all’azione sismica, mentre quelli con doppia campitura non lo sono.
La corrispondenza tra tabelle ed elaborati si ottiene dal numero dell’elemento (riportato in grassetto sull’elemento stesso) e dal numero di piano.

Tabella 49.a – Verifica (lunghezza elemento)/(altezza foro) della parete 1 - 2 - 3 - 4 - 5

Figura 11.a – Elementi resistenti a sisma della parete 1 – 2 – 3 – 4 – 5

Tabella 49.b – Verifica (lunghezza elemento)/(altezza foro) della parete 6 - 7 - 8 - 9 - 10

Figura 11.b – Elementi resistenti a sisma della parete 6 – 7 – 8 – 9 – 10

Tabella 49.c – Verifica (lunghezza elemento)/(altezza foro) della parete 11 - 12 - 13 - 14

Figura 11.c – Elementi resistenti a sisma della parete 11 – 12 – 13 – 14

Tabella 49.d – Verifica (lunghezza elemento)/(altezza foro) della parete 15 - 16 - 17 - 18

Figura 11.d – Elementi resistenti a sisma della parete 15 – 16 – 17 – 18

Tabella 49.e – Verifica (lunghezza elemento)/(altezza foro) della parete 15 - 11 - 6 - 1

Figura 11.e – Elementi resistenti a sisma della parete 15 – 11 – 6 – 1

Tabella 49.f – Verifica (lunghezza elemento)/(altezza foro) della parete 16–12–7–2 e della parete 17–13–8–3

Figura 11.f – Elementi resistenti a sisma della parete 16–12–7–2 e della parete 17–13–8–3

Tabella 49.g – Verifica (lunghezza elemento)/(altezza foro) della parete 18 - 19 - 14 - 9 - 4

Figura 11.g – Elementi resistenti a sisma della parete 18 – 19 – 14 – 9 – 4

Tabella 49.h – Verifica (lunghezza elemento)/(altezza foro) della parete 20 - 10 - 5

Tabella 49.i – Verifica (lunghezza elemento)/(altezza foro) della parete 19 - 20

Figura 11.h – Elementi resistenti a sisma della parete 20–10–5 e della parete 19–20
Come si può vedere dai risultati, quasi tutti gli elementi sono idonei a resistere all’azione sismica, ad eccezioni di alcuni elementi di lunghezza pari a 70 cm appartenenti alle pareti 6-7-8-9-10 ed 11-12-13-14.
Vai alla pagina introduttiva
Indice