Immagini del paragrafo 8.1 relativo ai tiranti metallici

Figura 8.1.1.a – Capochiave circolare

Figura 8.1.1.e – Posizione corretta del paletto: inclinato a 45°

Figura 8.1.4 – Azioni normali (a) e tangenziali (b) sulla superficie del cuneo di distacco

Figura 8.1.10 – Schematizzazione del capochiave rettangolare

Figura 8.1.12 – Particolare costruttivo del capochiave circolare

Figura 8.1.22 – Sistema costituito da un singolo muro con solaio applicato in testa

Figura 8.1.25 – Curva di capacità in presenza di tirante senza pretensione

Figura 8.1.27 – Collocazione di tiranti per impedire meccanismi di ribaltamento

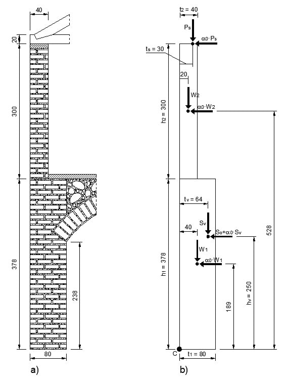
Figura 8.1.29 – Geometria della struttura

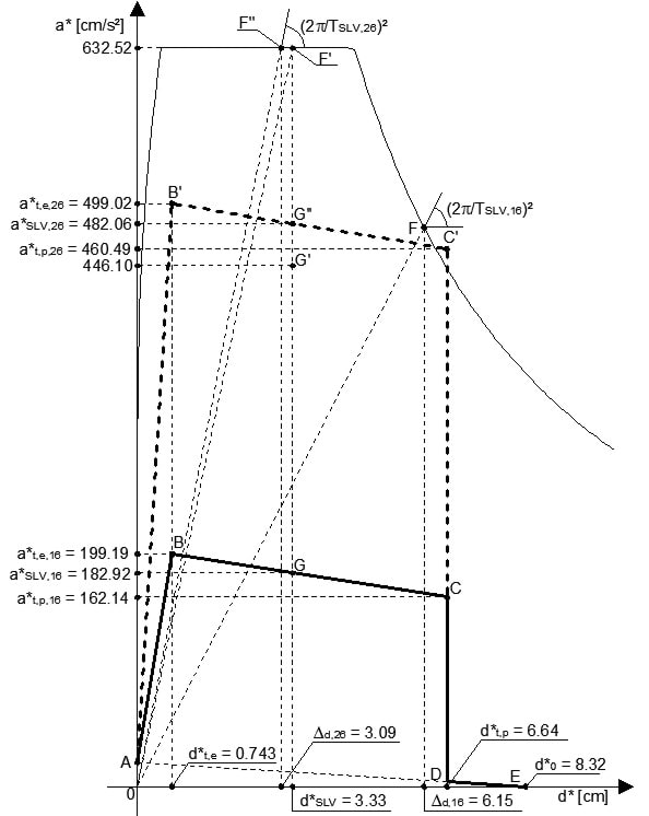
Figura 8.1.34 – Soluzione grafica del sistema

Figura 8.1.36 – Sezione di verifica

Figura 8.1.40 – Verifica grafica del meccanismo con tirante

Figura 8.1.46 – Contributo dei tiranti nel meccanismo di ribaltamento del cantonale
TORNA ALLA SCHEDA PRINCIPALE DEL TESTO