2.2 Prospetti

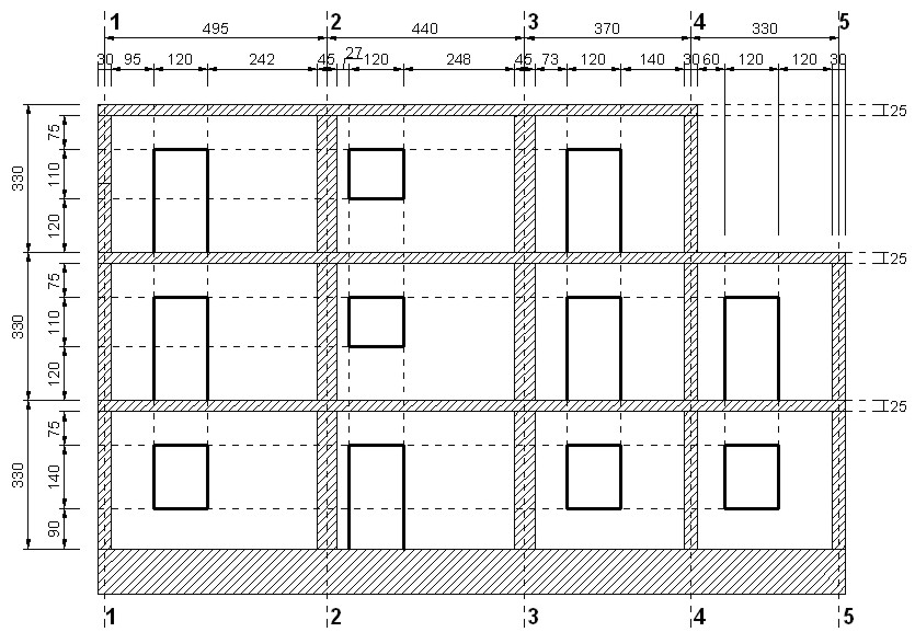
Figura 3.a – Parete 1 – 2 – 3 – 4 – 5

 

Figura 3.b – Parete 6 – 7 – 8 – 9 – 10

 

Figura 3.c – Parete 11 – 12 – 13 – 14

 

Figura 3.d – Parete 15 – 16 – 17 – 18

 

Figura 3.e – Parete 15 – 11 – 6 – 1

 

Figura 3.f – Parete 16 – 12 – 7 – 2;  Parete 17 – 13 – 8 – 3

 

Figura 3.g – Parete 18 – 19 – 14 – 9 – 4

 

Figura 3.h – Parete 20 – 10 – 5;   Parete 19 – 20

 

Indice



mercoledì 29 aprile 2026

tiranti in acciaio nelle costruzioni in muratura

muratura armata antisismica

Consolidamento edifici in muratura

consolidamento per edifici in muratura