Immagini del paragrafo 8.10 relativo alle cerchiature nelle aperture

 

Figura 8.10.1 - Esempio di cerchiatura 

 

 

 

Figura 8.10.2 - a) Realizzazione del foro per l'alloggiamento dell'architrave; b) Realizzazione del foro per l'alloggiamento della cerchiatura

 

 

 

Figura 8.10.3 - a) Perforazioni armate per il collegamento tra muratura e cerchiatura; b) Alloggiamento cerchiatura 

 

 

 

Figura 8.10.4 - Schema della cerchiatura 

 

 

Figura 8.10.6 – Parete costituita dai tre maschi murari M1, M2 ed M3

 

 

Figura 8.10.7 – Curva di capacità di una parete costituita da tre maschi murari

 

 

Figura 8.10.8 – Parete con telaio

 

Figura 8.10.9 – Curva di capacità di una parete con telaio

 

 

 

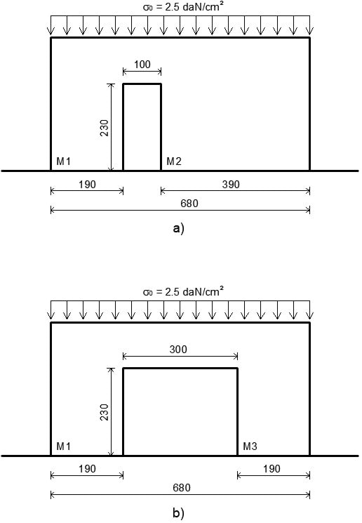
Figura 8.10.10 – Parete costituita da due maschi murari (prima della realizzazione del foro)

 

 

 

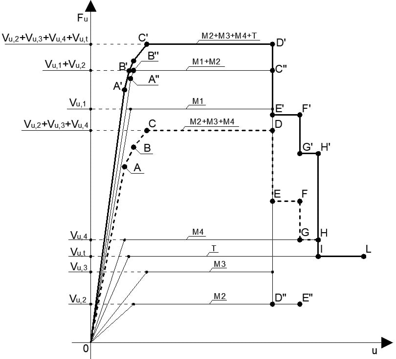
Figura 8.10.11 – Curve di capacità per parete con e senza cerchiatura

 

 

Figura 8.10.13 – Parete costituita da due maschi murari ed una cerchiatura

 

Figura 8.10.14 – Curve di capacità della parete con e senza intonaco armato

 

 

 

Figura 8.10.15 – Parete consolidata con intonaco armato

 

 

Figura 8.10.17 – Sistema muratura-cerchiatura

 

 

 

Figura 8.10.18 Curva di capacità della parete consolidata con cerchiatura 

 

 

 

Figura 8.10.19 Geometria della parete – a) stato di fatto; b) progetto

 

 

Figura 8.10.20 Curva di capacità dello stato di fatto

 

 

Figura 8.10.21 Parete con architrave HEB 140 e consolidata con intonaco armato

 

 

 

Figura 8.10.22 Curve di capacità ante e post-operam

 

 

 

Figura 8.10.24 – Particolare costruttivo del collegamento tra la cerchiatura e la trave di fondazione 

 

TORNA ALLA SCHEDA PRINCIPALE DEL TESTO



giovedì 16 aprile 2026

tiranti in acciaio nelle costruzioni in muratura

muratura armata antisismica

Consolidamento edifici in muratura

consolidamento per edifici in muratura