Analisi dei meccanismi locali
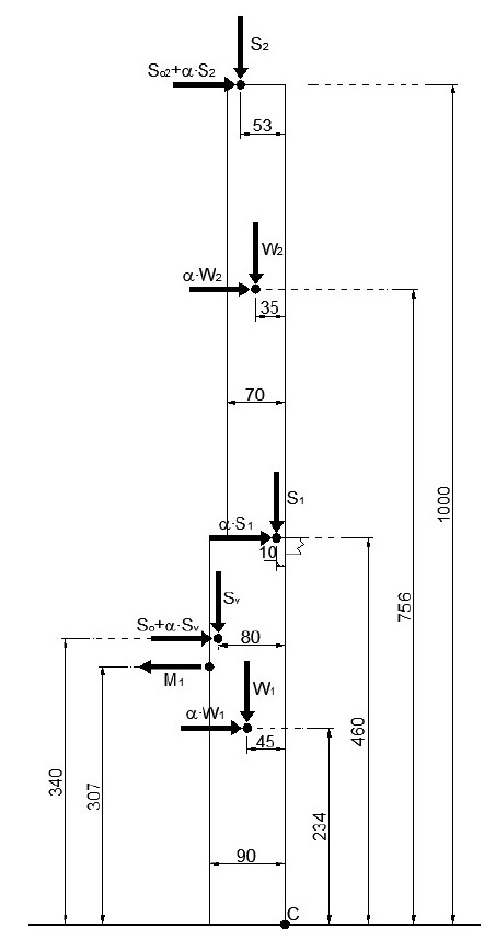
Si effettua la verifica secondo l’analisi cinematica lineare riportata nel punto C8.7.1.2 della Circolare 7/2019. La verifica viene effettuata a ribaltamento semplice e flessione verticale per tutte le pareti di cui è costituita la struttura, considerando diverse posizioni per le cerniere cinematiche. Si assumono i risultati relativi alla posizione di cerniera che fornisce l'indicatore di rischio più basso. Come fatto per le verifiche in assenza di sisma, anche in questo caso si effettua manualmente il calcolo di una sola parete e si riportano in sintesi i risultati di tutte le altre pareti per cui l’esito della verifica risulta essere negativo. Si effettua la verifica per lo stato limite di salvaguardia della vita (SLV). Si sviluppa manualmente il calcolo del meccanismo a ribaltamento semplice della parete 8-4 (parete evidenziata in rosso in figura 12). Nella figura 11 e nella tabella 6 si riportano i carichi che gravano sulla parete e le distanze dalla cerniera cinematica C. Sul meccanismo gravano le forze peso stabilizzanti delle pareti (W1 e W2), le forze stabilizzanti dovute al balcone ed al tetto (S1 e S2), la forza stabilizzante verticale dovuta alla volta (Sv), la forza stabilizzante dovuta alla parete ortogonale al primo piano f.t. (M1 - si considera solo la parete 9-8. La forza stabilizzante della parete ortogonale 4-17 si ritiene trascurabile per via delle modestissime dimensioni del maschio murario), la forza destabilizzante dovuta alla spinta orizzontale della volta (So), la forza destabilizzante dovuta alla spinta orizzontale dei travetti del tetto (So2) e le forze destabilizzanti inerziali (a0·W1, a0·W2, a0·S1, a0·S2 e a0·Sv).


Figura 11 – Geometria e carichi sul meccanismo
Dall’equilibrio alla rotazione intorno alla cerniera cinematica C si ottiene:

Esplicitando rispetto ad a0 e sostituendo i valori numerici riportati nella tabella 7 si ottiene:

Il valore negativo del moltiplicatore di attivazione del meccanismo è dovuto alle spinte statiche orizzontali. Ciò implica che la parete non è in grado di resistere ad alcuna forza sismica. Di conseguenza anche l’accelerazione spettrale di attivazione del meccanismo (a*0 = 0) ed il coefficiente di sicurezza (s = 0) assumono valore nullo.
Nella tabella 8 si riporta il coefficiente di sicurezza per le pareti che danno esito negativo della verifica. Nella suddetta tabella si riporta il moltiplicatore di attivazione del meccanismo (a0), l’accelerazione spettrale di attivazione del meccanismo (a*0), l’accelerazione minima richiesta, il coefficiente di sicurezza (s) e l’esito della verifica.

Solo per la parete calcolata manualmente il moltiplicatore di attivazione del meccanismo assume valore negativo. Per tutte le altre il suddetto moltiplicatore assume valore positivo. Ciò implica che la parete 8-4 è l’unica con risorse sismiche nulle. Le altre, se pur limitate, hanno risorse sismiche. Nella figura 12 vengono evidenziati le pareti riportate nella tabella 8 che non verificano al calcolo dei meccanismi locali. La parete evidenziata in rosso è quella per cui è stato svolto il calcolo manuale sopra riportato.

Figura 12 – Elementi che non soddisfano la verifica ai meccanismi locali (tratteggiati in figura)
Torna alla scheda principale