Domanda 23
Con l'utilizzo delle fibre di carbonio si posso manifestare variazioni di rigidezza?
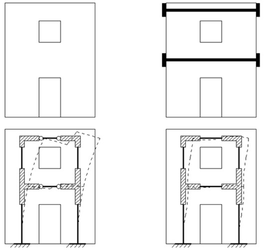
Risposta 23
Il consolidamento con FRP non incide sulla rigidezza di un singolo elemento. Può incidere sulla rigidezza di un’intera parete o di un’intera struttura. Innanzi tutto, l’utilizzo delle fibre collocate nelle fasce di piano consente di considerare queste ultime incastrate agli estremi nel modello di calcolo, il che comporta un incremento di rigidezza (vedi immagine successiva).

Inoltre la forma di una curva di capacità (e quindi la rigidezza) dipende anche dalla sequenza con cui si plasticizzano gli elementi. Il consolidamento con FRP può posticipare la plasticizzazione di alcuni elementi che può comportare una rigidezza diversa per la struttura (vedi figura sotto riportata).
