Prescrizioni per la regolarità degli edifici in muratura
(secondo il punto 7.2.2 del D. M. 14/01/2008)
Articolo disponibile anche in formato PDF
Per le costruzioni in muratura, sia ordinaria che armata, è possibile applicare tutte le tipologie di analisi (statiche e dinamiche), a prescindere dalla regolarità delle stesse costruzioni. Tuttavia, le strutture regolari sono da preferirsi in quanto hanno un comportamento migliore sotto gli effetti delle azioni sismiche. Di ciò se ne tiene conto nella definizione dello spettro di progetto attraverso il coefficiente KR. Inoltre, la regolarità di una costruzione viene richiesta nel caso delle costruzioni semplici.
Le costruzioni devono avere, quanto più possibile, struttura iperstatica caratterizzata da regolarità in pianta e in altezza (punto 7.2.2 del D.M. 14/01/2008).
1 – Regolarità in pianta
Per quanto riguarda gli edifici, una costruzione è regolare in pianta se tutte le seguenti condizioni sono rispettate:
-
la configurazione in pianta è compatta e approssimativamente simmetrica rispetto a due direzioni ortogonali, in relazione alla distribuzione di masse e rigidezze;
-
il rapporto tra i lati di un rettangolo in cui la costruzione risulta inscritta è inferiore a 4;
-
nessuna dimensione di eventuali rientri o sporgenze supera il 25% della dimensione totale della costruzione nella corrispondente direzione;
-
gli orizzontamenti possono essere considerati infinitamente rigidi nel loro piano rispetto agli elementi verticali e sufficientemente resistenti.
Si commentano di seguito in modo dettagliato i precedenti punti.
a): l’edificio deve essere compatto ed approssimativamente simmetrico rispetto alle due direzioni ortogonali. Data la geometria della struttura, si calcola il baricentro geometrico, quello delle masse e quello delle rigidezze di ogni piano. Se la distanza tra il baricentro geometrico e quello delle masse e delle rigidezze è minore di un limite prestabilito, si può affermare che la prescrizione è rispettata.
Il baricentro geometrico G(xG, yG) si ottiene dal baricentro della superficie che individua il poligono esterno dell’edificio.
Il baricentro delle rigidezze R(xR, yR) si ottiene dalle seguenti relazioni (vedi figura 1):
(1)
dove
-
xR ed yR sono le coordinate x ed y rispettivamente del baricentro delle rigidezze del piano considerato;
-
nx ed ny sono il numero di elementi in direzione x ed y rispettivamente;
-
kxi e kyi sono le rigidezze in direzione x ed y dell’i-esimo elemento;
-
xi ed yi sono le coordinate del baricentro dell’i-esimo elemento;
-
kx e ky la somma delle rigidezze in direzione x ed y rispettivamente.
La rigidezza dell’i-esimo elemento si ottiene dalle (2), ipotizzando per l’elemento stesso la sola possibilità di traslare in testa (vedi figura 2):

Figura 1 – Baricentro geometrico (G), delle masse (M) e delle rigidezze (R)
(2)
dove
-
h è l’altezza dell’elemento;
-
E è il modulo elastico normale della muratura;
-
G è il modulo elastico tangenziale della muratura;
-
Ix ed Iy sono i momenti d’inerzia rispetto all’asse orizzontale baricentrico parallelo all’asse x ed y rispettivamente dati dalle seguenti:
(per elementi paralleli all’asse x) (3.a)
(per elementi paralleli all’asse y) (3.b)

Figura 2 – Schematizzazione del maschio murario
Nelle (3) si indica con “l” la lunghezza dell’elemento e con “t” lo spessore (vedi figura 2).
Il baricentro delle masse M(xM, yM), in analogia con il calcolo del baricentro delle rigidezze, si ottiene dalle seguenti relazioni:
(4)
dove
-
xM ed yM sono le coordinate x ed y rispettivamente del baricentro delle masse del piano considerato;
-
n è il numero di elementi con massa di cui è composto il piano;
-
Mi è la massa dell’i-esimo elemento;
-
xi ed yi sono le coordinate del baricentro dell’i-esimo elemento.
Affinché la prescrizione di regolarità in pianta sia soddisfatta devono essere verificate le seguenti relazioni (vedi figura 1):
(5.a)
(5.b)
dove
-
x,R è la distanza in direzione x tra il baricentro geometrico e quello delle rigidezze del piano;
-
y,R è la distanza in direzione y tra il baricentro geometrico e quello delle rigidezze del piano;
-
x,M è la distanza in direzione x tra il baricentro geometrico e quello delle masse del piano;
-
y, M è la distanza in direzione y tra il baricentro geometrico e quello delle masse del piano;
-
a è il lato in direzione x del piano (vedi figura 1);
-
b è il lato in direzione y del piano (vedi figura 1);
-
è il coefficiente moltiplicativo variabile tra 0 e 1 (per esempio, se si vuole rientrare in una percentuale del 10%, occorre porre
= 0.1).
b): la lunghezza del lato maggiore può essere al massimo quattro volte quella del lato minore. Si intendono come lati ai fini della verifica quelli del rettangolo che include perfettamente l’edificio. Dati i lati del suddetto rettangolo “a” e “b”, con “a” < “b”, la verifica si ritiene soddisfatta quando è soddisfatta la seguente (vedi figura 3):
(6)

Figura 3 – a) Pianta con sporgenza; b) Pianta con rientranza
c): sono ammesse sporgenze o rientri in pianta purché siano inferiori al 25% della dimensione massima nella stessa direzione, per cui devono essere rispettate le seguenti relazioni (vedi figura 3):
(7.a)
(7.b)
dove si indica con “a” e “b” i lati del rettangolo in cui è inscritto l’edificio e con a1 e b1 le eventuali sporgenze o rientranze.
d): questa prescrizione impone che gli orizzontamenti siano infinitamente rigidi nel proprio piano. Sono ammessi solai tipo latero-cementizi, con putrelle e tavelloni, ecc. Non sono ammessi orizzontamenti deformabili come per esempio quelli in legno senza solettina in calcestruzzo.
2 – Regolarità in elevazione
Sempre riferendosi agli edifici, per il punto 7.2.2 del D.M. 14/01/2008, una costruzione è regolare in altezza se tutte le seguenti condizioni sono rispettate:
-
tutti i sistemi resistenti verticali (quali telai e pareti) si estendono per tutta l’altezza della costruzione;
-
massa e rigidezza rimangono costanti o variano gradualmente, senza bruschi cambiamenti, dalla base alla sommità della costruzione (le variazioni di massa da un orizzontamento all’altro non devono superare il 25%, la rigidezza non si deve ridurre da un orizzontamento a quello sovrastante di più del 30% e non deve aumentare di più del 10%); ai fini della rigidezza si possono considerare regolari in altezza strutture dotate di pareti o nuclei in c.a. o pareti e nuclei in muratura di sezione costante sull’altezza o di telai controventati in acciaio, ai quali sia affidato almeno il 50% dell’azione sismica alla base;
-
(non importante per gli edifici in muratura);
-
eventuali restringimenti della sezione orizzontale della costruzione avvengono in modo graduale da un orizzontamento al successivo, rispettando i seguenti limiti: ad ogni orizzontamento il rientro non supera il 30% della dimensione corrispondente al primo orizzontamento, né il 20% della dimensione corrispondente all’orizzontamento sottostante. Fa eccezione l’ultimo orizzontamento di costruzioni di almeno quattro piani per il quale non sono previste limitazioni di restringimento.
Si commentano di seguito in modo dettagliato i precedenti punti.
e): sono ammesse configurazioni in elevazione di strutture simili a quella riportata in “a” di figura 4, mentre non sono ammesse quelle con configurazione in elevazione simili a quella riportata in “b” della stessa figura.

Figura 4 – a) Configurazione di parete accettabile; b) Configurazione di parete non accettabile
f): la massa e la rigidezza non devono variare in modo brusco tra un piano e l’altro. Per la massa occorre che sia verificata la seguente condizione:
(8)
dove
-
M è la variazione di massa tra il piano i ed il piano j;
-
Mi è la massa totale del piano i;
-
Mj è la massa totale del piano j.
Ragionamento simile vale anche per la variazione delle rigidezze tra due piani successivi. Se la rigidezza del piano immediatamente superiore è minore di quella del piano inferiore, tale riduzione non può essere maggiore del 30%, per cui deve essere verificata la seguente relazione:
(9.a)
Se la rigidezza del piano superiore è maggiore di quella del piano inferiore, tale incremento non può essere maggiore del 10%, per cui deve essere verificata la seguente relazione:
(9.b)
dove
-
R è la variazione di rigidezza tra il piano i ed il piano i+1;
-
Ri è la rigidezza totale del piano i;
-
Ri+1 è la rigidezza totale del piano i+1.
In altre parole, se la rigidezza del piano superiore diminuisce rispetto a quella del piano inferiore, tale riduzione può essere al massimo del 30%, mentre se aumenta, tale aumento può essere al massimo del 10%
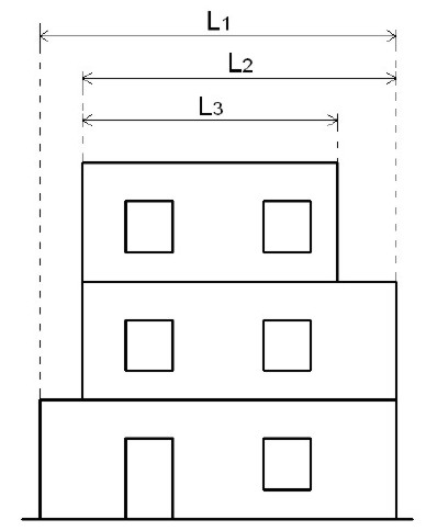
h): il restringimento dei piani superiori deve rispettare determinati limiti che vengono di seguito riportati (vedi figura 5):
(i = 2, 3 per l’edificio in figura 5) (10.a)
(i = 1, 2 per l’edificio in figura 5) (10.b)

Figura 5
dove si indica con Li (i = 1, 2, 3 per l’edificio in figura 5) la lunghezza dell’i-esimo piano dell’edificio.
Bibliografia
Calcolo della muratura armata antisismica per nuove costruzioni – Michele Vinci – Dario Flaccovio Editore